Appartamento in vendita a Taranto

Taranto - Appartamento in vendita
67.150 €
Caratteristiche principali
100 m²
Superficie
5,5
Locali
Descrizione
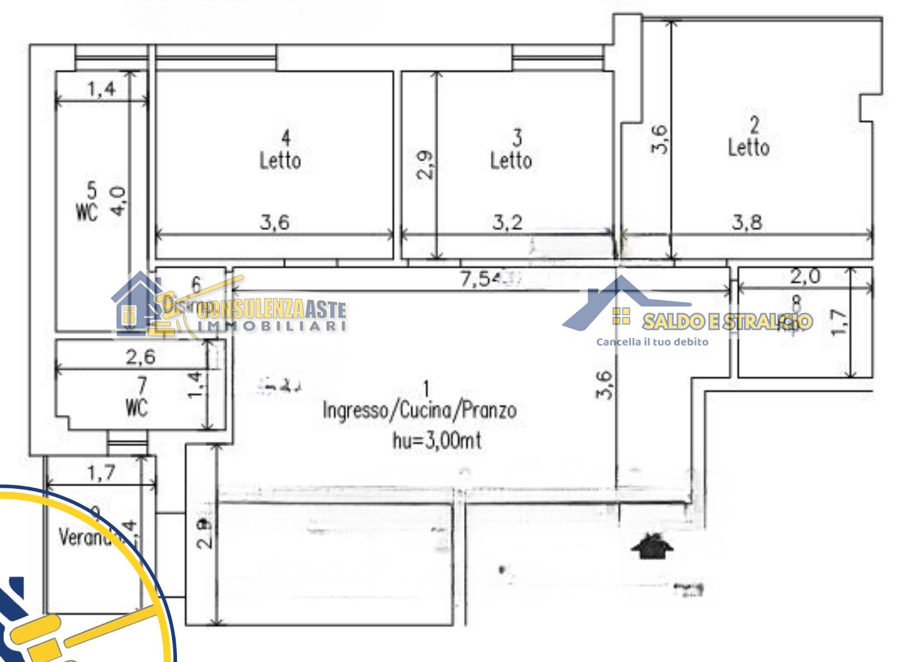
Appartamento all'asta Viale Magna Grecia 320 - Taranto

Posto al piano ottavo. L'immobile risulta così composto: ingresso/cucina/pranzo, due camere da letto, due w.c., un disimpegno, un ripostiglio ed una veranda, per 84 mq.
Al quattordicesimo piano, è ubicata la cantinola di pertinenza dell'appartamento composta da un unico vano dalla superficie di 9 mq.
Il tutto sviluppa una superficie di 93 mq.

Valore di mercato: €90.000 Offerta minima: €67.150 Proc: 118/2025 Data asta: 17/03/2026
Caratteristiche
Codice:
118/2025 lotto u
Città:
Taranto
Categoria:
Appartamento
Locali:
5,5
Mq:
100
Classe energetica:
A4
Mappa
Viale Magna Grecia, 320 - Taranto (TA)
Cookie preference